
电话:86 0512 57779367
皮带线广泛应用于电子、五金、塑胶等行业装配输送场合。可根据要求灵活设计制作。

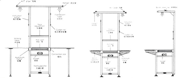
防静电PVC皮带线 皮带线

转弯皮带机 90o转弯皮带机

皮带线 皮带机

木材家具业 食品行业
印刷行业

自动化装配检测生产线以及非标准专机设备